Αθήνα – Άγιος Ελευθέριος | Ζαχαρία Παπαντωνίου 8-10

Διαθέσιμα Διαμερίσματα

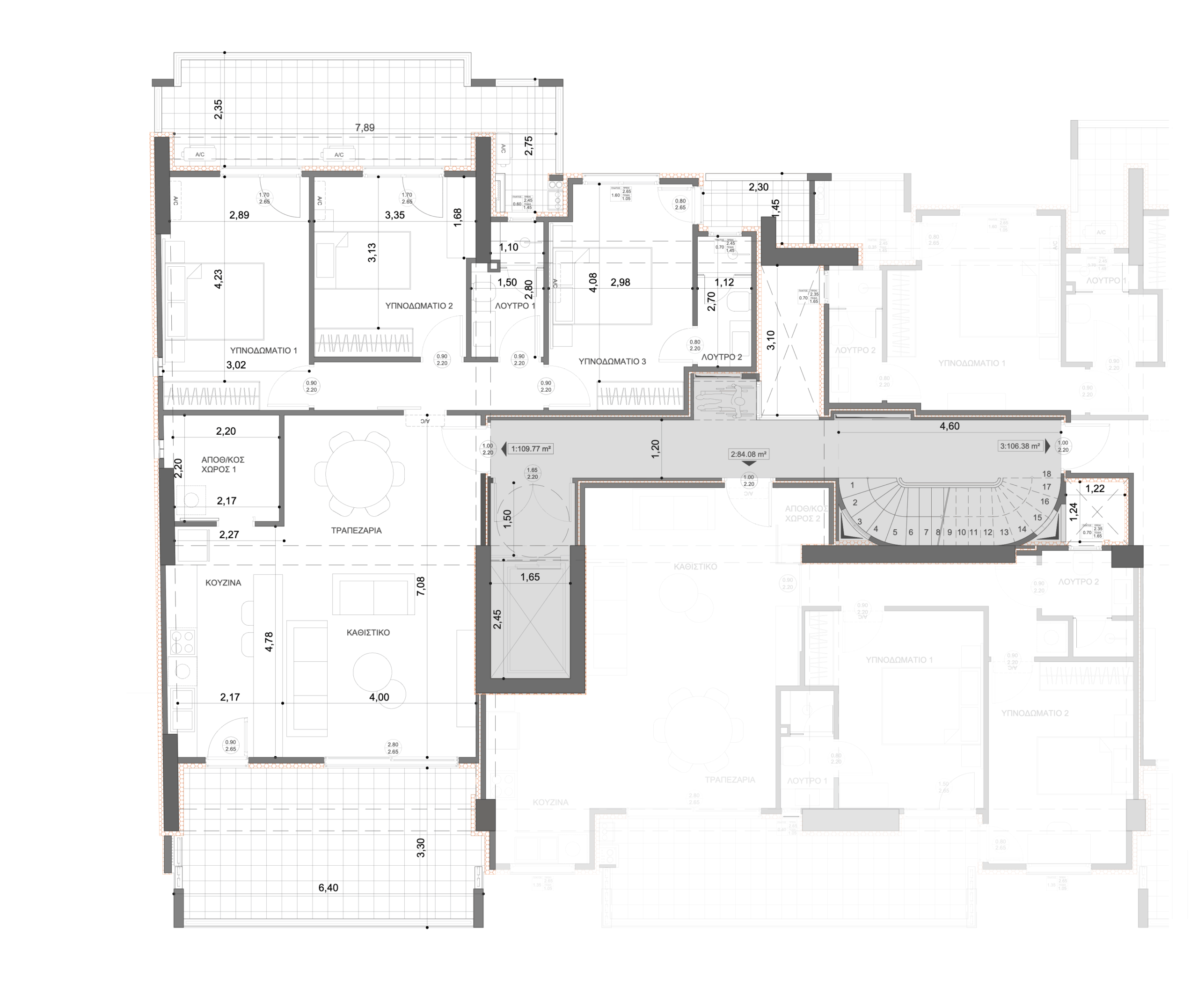
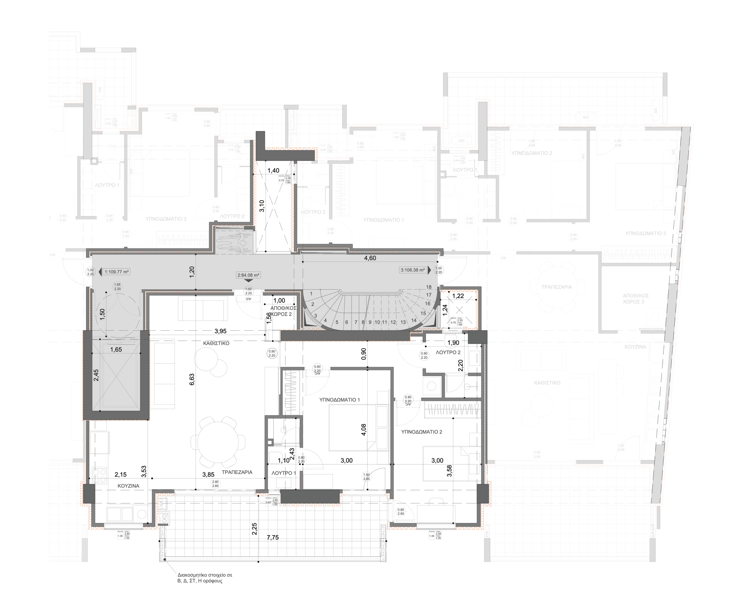
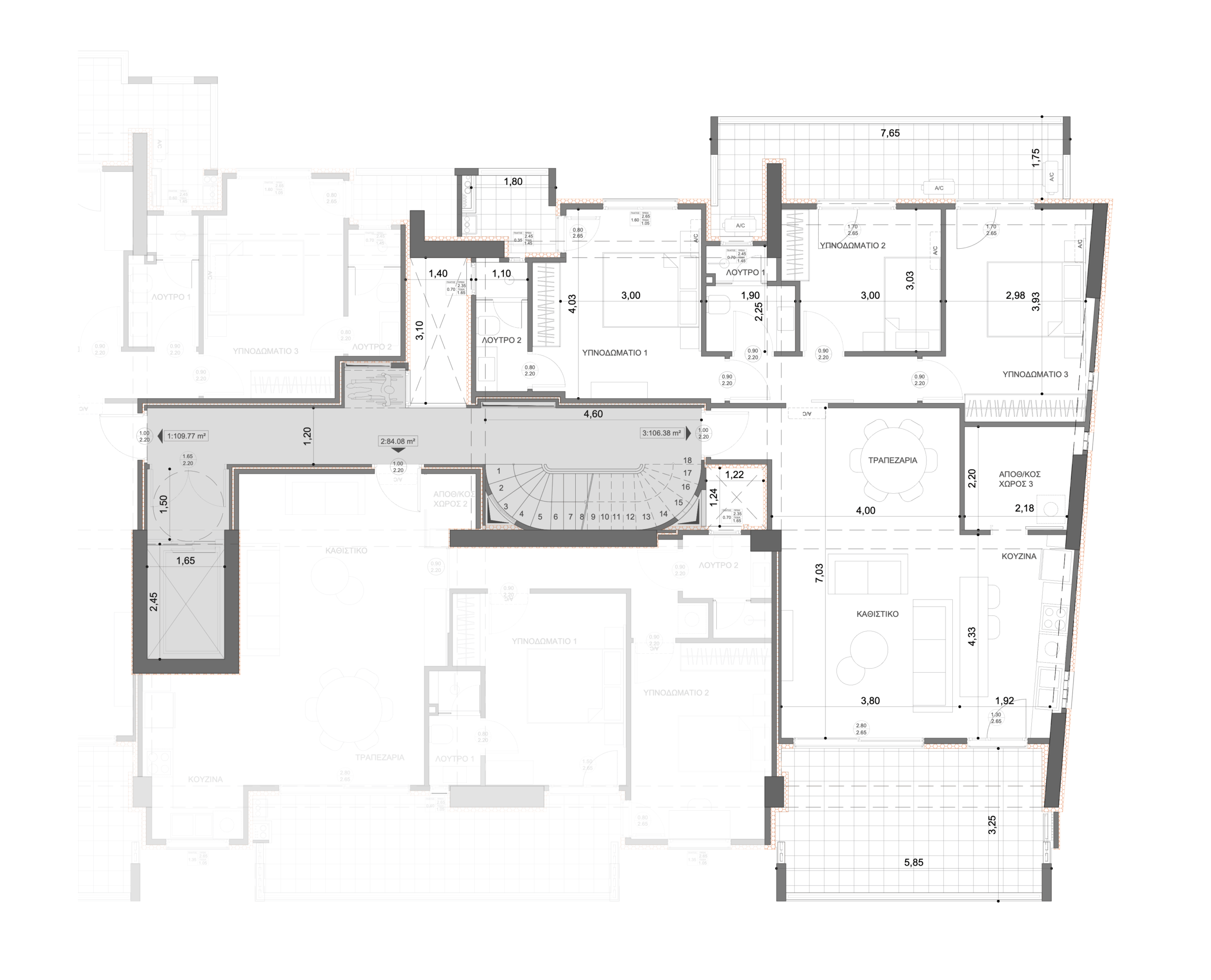
Το κτίριο βρίσκεται στην οδό Ζαχαρία Παπαντωνίου 8-10 και αποτελείται από 27 διαμερίσματα.

  • Αντισεισμική κατασκευή με μπετόν κατηγορίας C 40/50
  • Ενεργειακή κλάση Α+
  • Καθαρό ύψος 2,90 μ.
  • Ατομικό λέβητα φυσικού αερίου για θέρμανση και ζεστό νερό για πλήρη αυτονομία.
  • Κλιματισμός (Air Condition) σε όλους τους χώρους
  • Εγκατεστημένη οπτική ίνα στο διαμέρισμα
  • Καλωδίωση Ethernet κατηγορίας 6 σε όλους τους χώρους.
  • Προεγκατάσταση συναγερμού και επαφών.
  • Parking Pilotis ή Υπογείου
  • Αποθηκευτικός χώρος σε όλα τα διαμερίσματα (υπογείου ή εντός διαμερίσματος).
Δες περισσότερα
  • Θερμαντικά σώματα με θερμοστατικές κεφαλές
  • Ενεργειακά κουφώματα με ενεργειακούς υαλοπίνακες και σήτα
  • Εξωτερική Θερμομόνωση με γραφιτούχες πλάκες εξηλασμένης πολυστερίνης 10 cm επικολλημένες με τη μεθοδο διπλής επίστρωσης, χωρίς κενά σημεία.
  • Εξωτερικές και εσωτερικές πόρτες με μεταλλικές κάσες.
  • Λουτρα με ντουζιέρες
  • Μεγάλες βεράντες
  • Εντοιχιζόμενα καζανάκια
  • Ηλεκτρομηχανικός ανελκυστήρας χαμηλής κατανάλωσης χωρίς μηχανοστάσιο
  • Θυροτηλεόραση με διπλή κάμερα
  • Διαμορφωμένους εξωτερικούς χώρους